不動産の事なら有限会社前田建設へお電話ください。046-205-5020不動産の事なら有限会社前田建設へご連絡ください。メールはindo@maedakensetsu.com 電話は046-205-5020です。

2DK・2LDK マンション 詳細 賃貸物件情報 有限会社 前田建設

大和市 2DK・2LDK「ハスミハイツ」主な内容

お問い合わせ>>2-NO.15

ペット相談可!

都市ガス

エアコン2基

都市ガス

・フローリング

エレベーター

大和市大和南 2DKマンション 大和市大和南 2DKマンション
大和市大和南 2DKマンション

大和市 2DK・2LDK「ハスミハイツ」詳細

マークが表示されいる箇所は該当します。

月額賃料 66,000円
駐車場
礼金・敷金 1ヶ月,1ヶ月(管理費-円)
所在地 大和市大和南
交通 小田急江ノ島線・相鉄線/大和駅 徒歩4分
築年 昭和59年6月
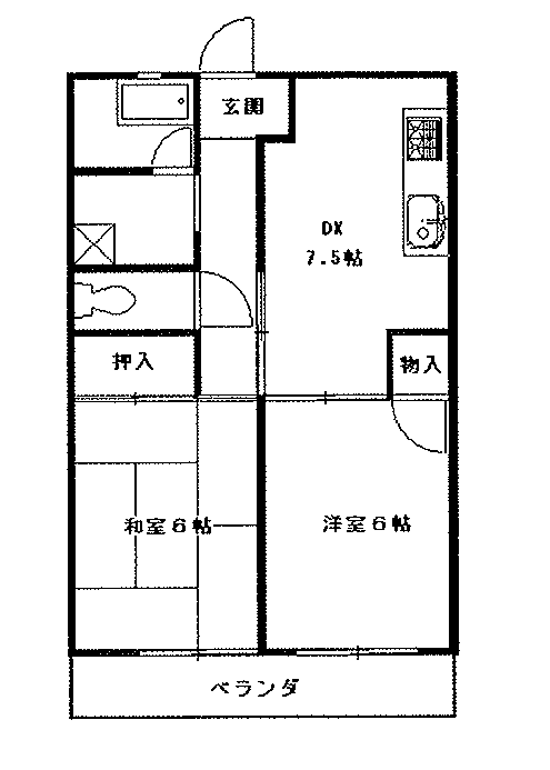
間取り 2DK
構造 鉄骨造
専有面積 49.5u
取引形態 媒介
バストイレ別室 給湯 シャワー
収納スペース 洗濯機置き場(屋内) エアコン
ベランダ・バルコニー 追い炊き機能付き オートロック
ガスコンロ設置可 フローリング エレベーター
BS端子 駐輪場 システムキッチン
catv ロフト シャンプードレッサー
都市ガス ウオシュレット 浴室乾燥機
モニター付きドアホン プロパンガス 宅配ボックス
分譲タイプ 日当たり良好 バリアフリー
閑静な住宅街 角部屋 外観タイル張り